вернуться к проектам домов

АТОММ СЬЮТ АРКТИК

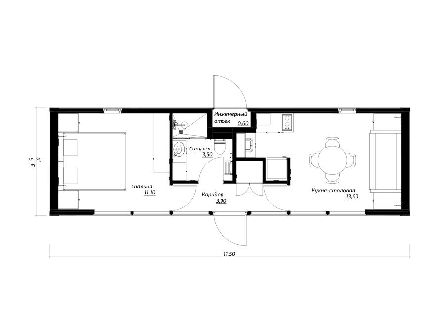
32,8 м²

1 Комната

1 Санузел

1 Этаж

Примеры внешней отделки

Клееный брус с покрытием «BORMA»

01

04

1

Комната

1

Санузел

1

Этаж

планировки

Планировка

Мебелировка

комплектации дома

Расчёт стоимости

МОДУЛЬ

СЕРВИС

Каркас

Клееный брус с покрытием «BORMA» (защитная восковая лазурь на масляной основе)

Утепление кровли: PIR стеклохолст 40 мм, минеральная вата 150 мм

Утепление стен: PIR стеклохолст 40 мм, минеральная вата 150 мм / ХPS 100 мм, PIR фольгированный 40 мм

Утепление пола: PIR стеклохолст 50 мм, минеральная вата 150 мм

Кровля

ТЕХНОНИКОЛЬ SHINGLAS многослойная черепица Кантри Платина

Отделка фасадов

Закаленное стекло 6 мм (Стемалит «Комфорт серебристо серый»), герметик Dowsil

Остекление и двери

Окна: Профиль трехслойный брус сосны 78 мм, цвет RAL 9005, поворотно-откидное с микропроветриванием, москитная сетка, однокамерный энергосберегающий стеклопакет, правого и левого открывания

Дверь входная: Профиль трехслойный брус сосны 78 мм, цвет RAL 9005, наружная фурнитура ROTO цвет серебро (одинаковая коллекция для окон и двери), накладные петли цвет серебро 3 шт., порог массив дуба 35 мм, однокамерный энергосберегающий закаленный стеклопакет

Двери внутренних помещений: Фанера ФСФ 10 мм шлифованная с покрытием грунтовочным маслом BORMA (белый) (спальня, кухня-гостиная). Фанера ФСФ 10 мм шлифованная с покрытием грунтовочным маслом BORMA (белый), решетка вентиляционная GTV, защелка (санузел).

Витражное остекление: закаленный стеклопакет однокамерный 32 мм, мультифункциональное энергосберегающее закаленное стекло Stopray Vision 36T 6мм

Дверь инженерного отсека: сталь, порошковая окраска, цвет RAL 9005 матовый

Внутренняя отделка стен

Отделка стен: Панели МДФ 16 мм в пленке ПВХ Шарли Мокко (спальня, гостиная). Фанера ФСФ 10 мм шлифованная с покрытием маслом BORMA 15/10 HWL (белый) (кухня гостиная / коридор / с/у). Панели Композит G9906 «Искристое серебро» (с/у)

Покрытие полов: Ламинат Quickstep дуб светлый 12 мм (спальня / кухня-гостиная). Керамогранит KERAMA MARAZZI светло-серый, 11 мм (санузел, коридор). Декор керамический светлый мозаичный (душевая зона с/у)

Потолки: Натяжной ПВХ потолок, белый матовый

Инженерия

Электрика: Скрытая разводка внутри контура пароизоляции (кабель медный, ГОСТ). 3-х фазное исполнение. Модульная продукция: System Electric (SE). Выключатели, розетки: линейка Atlas Design, (SE). Розетки IP исполнения в инженерном отсеке

Система отопления: Электрический теплый пол с автоматическим контролем нагрева (спальня, кухня-гостиная, санузел). Тепловой насос «воздух – воздух» DAICHI. Канальный нагреватель приточного воздуха

Cистема вентиляции: Приточная система с фильтрацией и подогревом (спальня, гостиная). Вытяжная система (кухня, санузел)

Климат-контроль: Мульти-сплит система кондиционирования (спальня, гостиная). Инверторный компрессор. Автоматика управления климатом

Водоснабжение и канализация: Узел ввода воды с запорной арматурой. Автоматическая защита от замерзания всех узлов подключения. Бойлер ГВС на 100 литров с сухим ТЭНом. Скрытая разводка воды и канализации

Освещение

Энергосберегающие потолочные LED светильники

Встроенная локальная подсветка на кухне

Светодиодные бра в спальне и гостиной

Внешняя архитектурная подсветка с диммером

Санузел

Душевая кабина из закаленного стекла

Унитаз с инсталляцией

Раковина с интегрированной мойкой

Зеркало с подсветкой

Смесители Ravak

Полотенцесушитель электрический с полкой для полотенец

Держатель туалетной бумаги, крючок для халатов

Шкаф для бойлера с местами для хранения

Спальня

Шкаф для белья

Шкаф для одежды

Кровать 1800×2000 с подъёмным ортопедическим основанием

Изголовье кровати с местами для хранения

Универсальный стол с тумбой под мини-бар

Кухня-гостиная

Диван раскладной двуспальный с антивандальной обивкой

Придиванные тумбы

Кухонный гарнитур со встроенной варочной панелью

Кухонная мойка и смеситель «Omoikiri»

Сушильный шкаф и полки для посуды

Ниша под полноразмерный холодильник

Коридор

Встроенный шкаф для обуви и верхней одежды с подсветкой

Доставка модуля

от 200 000 ₽

Доставка низкопольным тралом. Стоимость уточняется индивидуально

-

Фундамент

от 100 000 ₽

Свайный фундамент

-

Установка модуля

от 350 000 ₽

Монтаж обвязочной доски

-

Монтаж модуля

-

Аренда крана

-

Гарантийный сервис

Конструктив — 60 мес., окна/двери/экстерьер — 24 мес., лакокрасочное покрытие и интерьер/оборудование — 12 мес.; расчётный срок службы не менее 15 лет (при сервисном обслуживании).

Больше, чем модуль

ХАРАКТЕРИСТИКИ

  • Полезная площадь

    32,8 м²

  • Габариты

    3,45х11,5х3,15 м

  • Кухонная зона

    1

  • Спальня

    1

  • Санузел

    1

  • Вместимость

    1-4

  • Сезонность

    Круглогодичная

ОПИСАНИЕ ДОМА

АТОММ — это Автономный Туристический Обитаемый Мобильный Модуль производства компании Технониколь. Современный, энергоэффективный и мобильный жилой модуль, идеально подходящий для турбаз, глэмпингов и эко-отелей. 
01 Готовое решение
Модуль полностью готов к проживанию: чистовая отделка, мебель, кухня — можно заезжать сразу.
02 Минимальные сроки запуска
Эксплуатация возможна через несколько часов после монтажа установки.
03 Энергоэффективность
Комфортная температура в любое время года благодаря грамотной теплоизоляции.
04 Мобильность
Модуль можно легко перевезти на новую площадку.
Atomm вид 1 Atomm вид 2
Рекомендуем прочитать:

Модульные дома ТН «АТОММ» для туризма и девелоперских проектов

О модульных домах ТН «АТОММ»: архитектура, преимущества и сценарии использования в туристических проектах.

ипотека с FJORDEN

3 шага к вашему дому:

1. Выбор и расчёт: Рассчитываем точную стоимость строительства по выбранному проекту.

2. Ипотека: Подбираем банк и оптимальные условия, собираем необходимые документы.

3. Старт строительства: Заключаем договор и приступаем к строительству.

дополнительная
информация

О нас

Дома Fjørden проектируются и собираются как целостные системы - от фундамента и коммуникаций до инженерного оснащения. 
Дома производятся в заводских условиях в виде утеплённых панелей стен, перекрытий и кровли высокой степени готовности.
Поставляются на земельный участок и монтируются буквально за несколько дней на фундамент, согласно выбранной комплектации.

Дома монтируются на фундамент УШП — монолитный фундамент со встроенными инженерными системами — водяным теплым полом, канализационной и системой водоснабжения, и электричеством.

Производство

Домокомплект, состоящий из панелей стен, перекрытий и кровли, производится в сухом отапливаемом цеху.

Все элементы подвергаются 100% проверке качества на участке технического контроля на заводе. При производстве домов используются только сертифицированные, экологически чистые материалы от известных мировых и российских производителей, а также передовые технологии обработки древесины и сборки каркасных панелей.

Автоматизированная система управления производством обеспечивает связь между компьютерным программированием проектов и производственными станками.

Производство пример 1Производство пример 2Производство пример 3Производство пример 4

Технология строительства

Монтаж домокомплекта из готовых Prefab – панелей осуществляется на заранее подготовленный фундамент в строгой технологической последовательности:

  • Устройство фундамента (проект фундамента разрабатывается для конкретного объекта строительства) с обустройством ливневой канализации, утепленной отмостки и закладной трубы
  • Монтаж обвязочной доски
  • Монтаж стеновых панелей 1 этажа
  • Монтаж панелей перекрытий
  • Монтаж строительной лестницы*
  • Монтаж стеновых панелей 2 этажа
  • Монтаж несущих опор балок и панелей крыши
  • Монтаж балок чердачного перекрытия
  • Постмонтажные работы по сборке домокомплекта (Проклейка пароизоляции, зашивка монтажных “карманов”, установка фасадной доски и доборных элементов)
  • Монтаж кровельного покрытия*
  • Установка мансардного окна*
  • Монтаж снегозадержания и водосточной системы

Особенности Префаб домов

Проверенная технология префаб

  • Конструктив с устранением всех недостатков традиционного строительства.
  • 90% дома собирается на заводе, а 10% - собирается на месте.

Cтроительство круглый год

  • Сборка домокомплектов производится круглый год, вне зависимости от погодных условий и без рисков снижения качества готового дома.

Идеальная геометрия сборки

  • Обширный станочный парк завода.
  • Максимальная автоматизация производства для создания домокомплектов с высочайшей точностью геометрии.

Оптимизация строительства

  • Оптимизация процесса по строительству – понадобится только монтаж.

Скорость решает все

  • Заводская сборка домов ускоряет возведение в 2-3 раза по сравнению с традиционным строительством, без рисков срыва сроков.
  • Теплый контур закрывается быстрее, а вместе с ним и сроки начала отделочных работ. Это делает строительный процесс понятным и ожидаемым.

Честная цена и сроки

  • Готовое решение с фиксированной ценой на весь объем услуг и четкими сроками производства.
  • Высокий уровень безопасности планирования.
  • Отсутствие непредвиденных повышений цен, например, из- за плохой погоды или непредсказуемых расходов.

Контроль качества

  • Непрерывный контроль этапов производства домокомплекта инженерами по качеству.
  • Выезд инженера технического аудита на ключевые точки приемки строительства, контроль заполнения журнала строительства, включая фотофиксацию каждого этапа сборки.

Как заказать строительство дома?

Оставьте заявку на сайте или свяжитесь с менеджером Fjorden любым удобным способом.

Напишите нам на электронную почту: Fjorden@litwin.house

Позвоните по телефону +7 (812) 209-07-22 и +7 (495) 109-07-22 

Или оставьте заявку через мессенджеры (WhatsApp/Telegram).

Гарантии и сервис

Гарантия производителя - 5 лет.
Гарантия на отделочные материалы, окна, материалы кровельного покрытия согласно гарантийного срока производителей комплектующих.

получить расчет сметы

Рассчитать стоимость строительства на вашем участке

Ваше имя*

Телефон*

Email*

Регион строительства

  • Теплый контур
  • White box

Комментарий

Согласен с условиями обработки персональных данных и политикой конфидециальности

смотреть другие проекты

Cookie файлы

На нашем сайте используются cookie–файлы, в том числе сервисов веб–аналитики. Используя сайт, вы соглашаетесь на обработку персональных данных при помощи cookie–файлов. Подробнее об обработке персональных данных вы можете узнать в Политике конфиденциальности.