вернуться к проектам домов

АТОММ ВЕРАНДА ПЛЮС

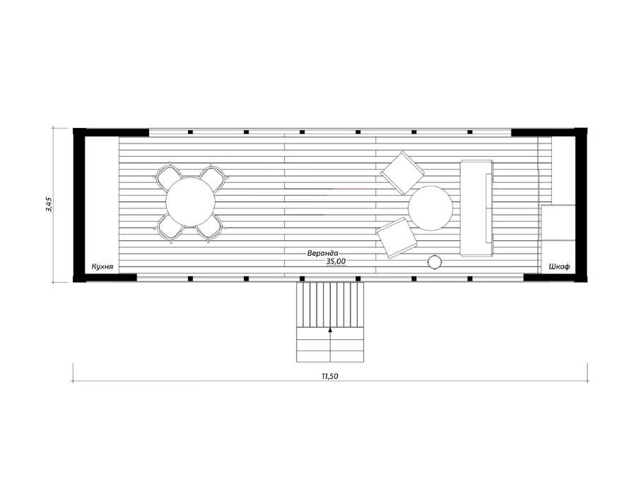
35 м²

1 Комната

- Санузлов

1 Этаж

Примеры внешней отделки

01

04

1

Комната

-

Санузлов

1

Этаж

планировки

Планировка

Мебелировка

комплектации дома

Расчёт стоимости

МОДУЛЬ

СЕРВИС

Каркас

Клееный брус с покрытием

Кровля

ТЕХНОНИКОЛЬ многослойная черепица

Кухня-гостиная

Интегрированный шкаф для хранения

Кухонный гарнитур

Доставка модуля

Доставка низкопольным тралом. Стоимость уточняется индивидуально

-

Фундамент

Свайный фундамент

-

Установка модуля

Монтаж обвязочной доски

-

Монтаж модуля

-

Аренда крана

-

Гарантийный сервис

Конструктив — 60 мес., окна/двери/экстерьер — 24 мес., лакокрасочное покрытие и интерьер/оборудование — 12 мес.; расчётный срок службы не менее 15 лет (при сервисном обслуживании).

Больше, чем модуль

ХАРАКТЕРИСТИКИ

  • Полезная площадь

    35 м²

  • Габариты

    3,45х11,5х3,15 м

  • Кухонная зона

    1

  • Вместимость

    1-9

  • Сезонность

    Круглогодичная

ОПИСАНИЕ ДОМА

Это открытый модуль веранды площадью 35 м², предназначенный для расширения функциональности и повышения комфорта основного жилого модуля ТН АТОММ Сьют Арктик

 

  • — фасад из стемалита 6 мм

  • — стены из шлифованной фанеры ФСФ 10 мм

  • — покрытие пола из термомодифицированной сосны

  • — встроенный кухонный гарнитур (фасады МДФ в плёнке) со столешницей и вместительный шкаф

  • — энергосберегающее освещение: наружное, потолочное и подсветка в шкафу

  • — диммеры, розетки и выключатели Schneider Electric Atlas Design

  • — не требует дополнительной отделки и готов к эксплуатации сразу после установки

atomm
Рекомендуем прочитать:

Модульные дома для туризма и девелоперских проектов

О модульных домах ТН «АТОММ»: архитектура, преимущества и сценарии использования в туристических проектах.

ипотека с FJORDEN

3 шага к вашему дому:

1. Выбор и расчёт: Рассчитываем точную стоимость строительства по выбранному проекту.

2. Ипотека: Подбираем банк и оптимальные условия, собираем необходимые документы.

3. Старт строительства: Заключаем договор и приступаем к строительству.

дополнительная
информация

О нас

Дома Fjørden проектируются и собираются как целостные системы - от фундамента и коммуникаций до инженерного оснащения. 
Дома производятся в заводских условиях в виде утеплённых панелей стен, перекрытий и кровли высокой степени готовности.
Поставляются на земельный участок и монтируются буквально за несколько дней на фундамент, согласно выбранной комплектации.

Дома монтируются на фундамент УШП — монолитный фундамент со встроенными инженерными системами — водяным теплым полом, канализационной и системой водоснабжения, и электричеством.

Производство

Домокомплект, состоящий из панелей стен, перекрытий и кровли, производится в сухом отапливаемом цеху.

Все элементы подвергаются 100% проверке качества на участке технического контроля на заводе. При производстве домов используются только сертифицированные, экологически чистые материалы от известных мировых и российских производителей, а также передовые технологии обработки древесины и сборки каркасных панелей.

Автоматизированная система управления производством обеспечивает связь между компьютерным программированием проектов и производственными станками.

Производство пример 1Производство пример 2Производство пример 3Производство пример 4

Технология строительства

Монтаж домокомплекта из готовых Prefab – панелей осуществляется на заранее подготовленный фундамент в строгой технологической последовательности:

  • Устройство фундамента (проект фундамента разрабатывается для конкретного объекта строительства) с обустройством ливневой канализации, утепленной отмостки и закладной трубы
  • Монтаж обвязочной доски
  • Монтаж стеновых панелей 1 этажа
  • Монтаж панелей перекрытий
  • Монтаж строительной лестницы*
  • Монтаж стеновых панелей 2 этажа
  • Монтаж несущих опор балок и панелей крыши
  • Монтаж балок чердачного перекрытия
  • Постмонтажные работы по сборке домокомплекта (Проклейка пароизоляции, зашивка монтажных “карманов”, установка фасадной доски и доборных элементов)
  • Монтаж кровельного покрытия*
  • Установка мансардного окна*
  • Монтаж снегозадержания и водосточной системы

Особенности Префаб домов

Проверенная технология префаб

  • Конструктив с устранением всех недостатков традиционного строительства.
  • 90% дома собирается на заводе, а 10% - собирается на месте.

Cтроительство круглый год

  • Сборка домокомплектов производится круглый год, вне зависимости от погодных условий и без рисков снижения качества готового дома.

Идеальная геометрия сборки

  • Обширный станочный парк завода.
  • Максимальная автоматизация производства для создания домокомплектов с высочайшей точностью геометрии.

Оптимизация строительства

  • Оптимизация процесса по строительству – понадобится только монтаж.

Скорость решает все

  • Заводская сборка домов ускоряет возведение в 2-3 раза по сравнению с традиционным строительством, без рисков срыва сроков.
  • Теплый контур закрывается быстрее, а вместе с ним и сроки начала отделочных работ. Это делает строительный процесс понятным и ожидаемым.

Честная цена и сроки

  • Готовое решение с фиксированной ценой на весь объем услуг и четкими сроками производства.
  • Высокий уровень безопасности планирования.
  • Отсутствие непредвиденных повышений цен, например, из- за плохой погоды или непредсказуемых расходов.

Контроль качества

  • Непрерывный контроль этапов производства домокомплекта инженерами по качеству.
  • Выезд инженера технического аудита на ключевые точки приемки строительства, контроль заполнения журнала строительства, включая фотофиксацию каждого этапа сборки.

Как заказать строительство дома?

Оставьте заявку на сайте или свяжитесь с менеджером Fjorden любым удобным способом.

Напишите нам на электронную почту: Fjorden@litwin.house

Позвоните по телефону +7 (812) 209-07-22 и +7 (495) 109-07-22 

Или оставьте заявку через мессенджеры (WhatsApp/Telegram).

Гарантии и сервис

Гарантия производителя - 5 лет.
Гарантия на отделочные материалы, окна, материалы кровельного покрытия согласно гарантийного срока производителей комплектующих.

получить расчет сметы

Рассчитать стоимость строительства на вашем участке

Ваше имя*

Телефон*

Email*

Регион строительства

  • Теплый контур
  • White box

Комментарий

Согласен с условиями обработки персональных данных и политикой конфидециальности

смотреть другие проекты

Cookie файлы

На нашем сайте используются cookie–файлы, в том числе сервисов веб–аналитики. Используя сайт, вы соглашаетесь на обработку персональных данных при помощи cookie–файлов. Подробнее об обработке персональных данных вы можете узнать в Политике конфиденциальности.